Popular Posts

《采薇》空间互换爆改65㎡小三房·北欧混轻美式

关注 胖徐的设计生活 请点上方 ▲蓝字

玩味设计美学,极致空间改造,创造美好生活

Blooming Flower

采薇April 17, 2020   


Copyright © PANGXU Design

Project area           房屋面积:65.51m2

Decoration cost     装修费用:180 Thousand Yuan

Design team          设计团队 :胖徐设计工作室

“昔我往矣,杨柳依依;今我来思,雨雪霏霏。” 昔日大雪纷飞千丝万缕,如今春意盎然鸟语花香。麦苗一片海,村庄是不沉的舟,纵横交错的河道,柳枝吐了嫩芽,芦苇边钻出放时透青。春来,一切都像刚刚睡醒,欣欣然张开眼。眼里那千姿百态芬芳的花,会让人想起些什么,憧憬些什么,期待些什么。你在我的眼前,我在你的眼里。

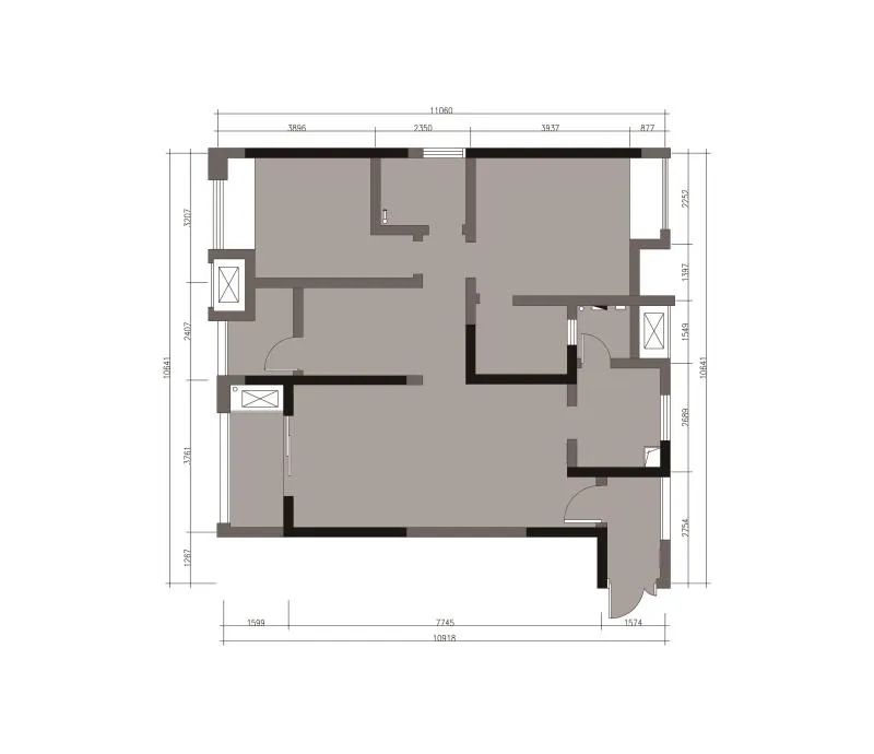
– 户型图 –

640 (1).jpg

@胖徐设计工作室:原始结构图

640 (2).jpg

@胖徐设计工作室:平面布置图,我们把主次卧位置对调,打通原有院馆,合理利用空间增至一大壁衣柜,使次卧变成主卧,原衣帽间改为公卫。扩大厨房面积,“L”形设计提供完善的开放式理念的烹饪体验,有足够存储空间。

– 客厅-

@胖徐设计工作室:客厅墙面融入浅灰乳胶,绿灰沙发相映地毯深浅相依,沙发背景墙装饰挂画高低不一,突显几分艺术气息,布艺灯罩的投入略显轻奢沉稳。

-走廊-

@胖徐设计工作室:条纹大理石地砖柔和视觉,其浅金的加入让空间升温,为居住带来暖意。

-餐厅-

– 柜子-

@胖徐设计工作室:原木六色斗柜,方便收纳。插花点缀客厅,春天又到赏花季,在家心境也惬意。

– 餐厅-

@胖徐设计工作室:隐形灯带贴合上梁营造浪漫温馨氛围,减少眩晕感。

-主卧-

@胖徐设计工作室:石膏线勾勒床铺外板凸显层次感,床背板与人字拼的栗色木地板融为一体,森林范儿十足,仿佛回归大自然。

-次卧-

@胖徐设计工作室:与主卧铺贴方法相似”人字拼“,咖色窗幔窗帘规避隐私。

-斗柜-

@胖徐设计工作室:屋内春意盎然不减,鸟语花香气息弥漫。壁布相衬“采薇”花束,多诗意的家。

-胖徐设计工作室-

-PANGXU Design-

私宅· 商业 · 软装 · 全托

玩味设计美学 | 营造极致空间 | 创造美好生活

长按关注胖徐设计工作室

官网https://www.tutum.top/

长按添加店长微信

地址:四川省成都市锦江区沙河街道通宝街217号环球汇蔚然6楼628

电话:023-81213250

手机:18223209011

发表回复

您的邮箱地址不会被公开。 必填项已用 * 标注