1
1
关注 胖徐的设计生活 请点上方 ▲蓝字

玩味设计美学,极致空间改造,创造美好生活

The whispers of nature
禾木絮语
June 18, 2020
Copyright © PANGXU Design
Project area 项目面积:125 m²
Decoration cost 装修费用:250 Thousand
Design team 设计团队:胖徐设计工作室
很小的时候我们一直期望成长、摆脱约束,踏足精彩的世界,追求最自由的生活方式,直到终于如愿离开,开启如成人般的生活,才发现儿时光是最简单、最美好、最幸福、最没有压力的时光,我们开始反思、开始找寻自我,开始回归。记得儿时家中长辈的出门前的喃喃絮语,抚摸着还略带扎手的条椅,没有上过漆的衣柜,透过木窗洒入到家中白墙上的一缕日光,门前围墙下搬家的蚂蚁,屋外不远处如绿浪般的禾苗。真的让人魂牵梦绕。
“在设计上我们也在时常反思、寻找,什么样的空间才能给人带来最美好、最幸福、最舒适的感受。现在我们要让设计回归自我内心最柔软的地方。”
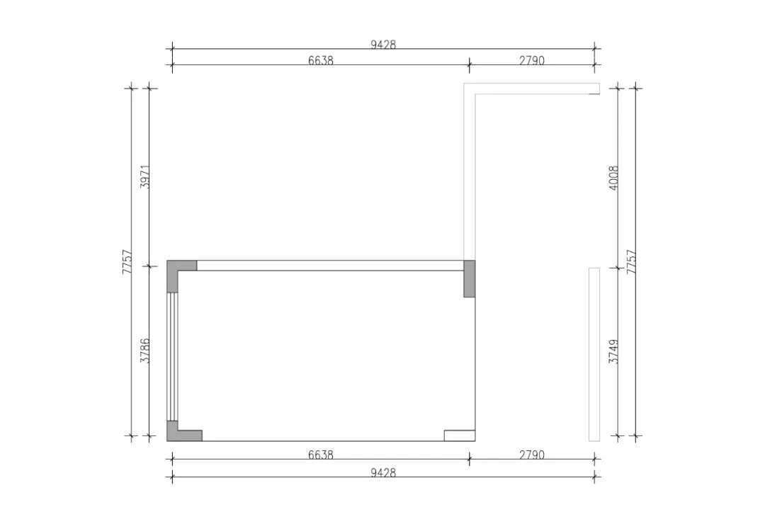
– 原始户型图 –

一楼

二楼
@胖徐设计工作室:本案是一个跃层架构房屋,原始房屋结构有几个致命的硬伤,1、是入户空间狭窄,加上玄关收纳后,空间会更加局促,2、厨房放下冰箱、天然气灶、淘菜盆后可操作空间小得可怜,3、餐厅因为厨房外突的关系,也是使用很局促。3、客厅的长度也是非常短小的,无法容纳一家人的正常起居、会客、生活,4、其次就是原始建筑是没有考虑上楼的楼梯位置的,如果放在客厅上楼本来就非常短小的客厅就完全无法使用了,而且上到二楼后,因为楼梯的位置居于整个空间的左下方,对于二楼的规划使用的浪费非常巨大。5、建筑的二楼楼顶又是一个双斜坡屋顶,中间二个区域划分开的地方因为结构承重梁的关系又非常的矮,怎么样让人上到二楼后,中间的通过中部承重梁时不产生压抑感这个都是在本案解决的问题。
– 平面布置图 –

一楼

二楼
@胖徐设计工作室:在设计上设计师把入户玄关的墙体拆除掉,厨房做内退处理,然后把生活阳台纳入到厨房空间里面来,同时把一楼得卫生间空间也做了内退处理把冰箱位置嵌入在墙体里面让厨房的可操作台面增大了2倍以上。这样整个餐厅面积也得到了释放,入户的空间感也做了极致极致,在客厅的处理上,设计师考虑屋顶还有一个非常大的屋顶露台,所以设计师就把原来的境观阳台纳入到了室内空间来,让客厅空间也得到的最大化的拓展。设计上把楼梯间放置在了房屋的中上部,除开楼梯后,这样多出来的空间面积可以分配到原来的左右二个卧室中,这样也让次卧室和儿童房的活动和储藏面积得到了最大的增加,生活更加的舒适和轻松。在二楼的空间设计师设计了一个专属全家的书房空间,让一家人在这里面能够有足够的面积可以在一起学习、主卧室的空间设计成了套房有带盥洗间的衣帽间和卫生间,同时也找到了承重梁的最高的让人舒适的通过,从而可以轻松的进入到卧室和屋顶露台花园进行活动。
-实景图-

@胖徐设计工作室:在入户玄关的位置我们把原建筑红棕色的防盗门换成了更适契合整风格调性的现代日式防盗门,没有把鞋柜设计到顶部去也是为了加大入户时的视觉通透感,多出来的换季鞋子我们最后把它们设计收纳到了楼梯间的储藏柜中,等一下可以看到。在餐厅的顶部我们考虑了洗顶的回形灯光个造型,内部在贴上统一的材质的木质饰面板,让润软的木质感能包裹整空间。

@胖徐设计工作室:在玄关处也预设了一个换鞋凳和衣帽挂架,方便出门时候换鞋的便利性。木质洞洞板增加零散物件挂置的趣味性,小盆栽,钥匙,便签或拍立得相片添生活小情调。



@胖徐设计工作室 :用餐区和待客区打通一体无分离,利用家具的摆放自动区分就餐与观影功能。除了必备的边柜、边几、沙发等等实用实木家具,清爽、原木天然的质感,多一分都多余。客厅的顶部我们也采用了和餐厅类似的回形设计,保证遮挡风管机的吊顶美观前提下,视觉增加层高并随之呼应餐厅的顶部设计。使之成为一体。


@胖徐设计工作室:不去追求繁复的造型装饰,采用留白设计的理念对空间进行意境处理,让整个客厅更加空间清爽舒适。


@胖徐设计工作室:竹木百叶帘,迥异于平时惯用的布艺窗帘,与主题基调呼应并可随时根据时日光照调节室内明暗光线。当阳光顺着百叶帘洒到地面上的时候儿时的味道跃然而出。


@胖徐设计工作室:厨房门我们使用的是长虹玻璃,在不失通透感的前提下又兼具了对厨房的视觉模糊化处理。

@胖徐设计工作室:儿童房趣味的门洞结构,无过多稚嫩元素适用孩子各个成长阶段的舒适。在满足孩子睡眠,读书的情况下,利用楼梯下的狭小空间设计隐藏式柜体和捉迷藏互动空间。满足幼童对自我空间的探索欲望和安全感。


@胖徐设计工作室:可爱的屋型拱门下隐藏式柜体放置孩子衣物,门边的磁性儿童黑板墙,在预防孩子随处乱涂乱画下提供一个可以随性发挥的区域。既丰富艺术氛围,又方便大人清洁擦洗。

@胖徐设计工作室:过道楼梯从一层延伸二层,满铺水墨状的大理石砖纹,纹路洒脱俊逸,质感通透。右边墙面是暗藏与楼梯间的储藏柜,换季的鞋子和杂物都可以收纳其中。


@胖徐设计工作室:二楼的书房空间保留了原始建筑的斜剖屋面结构旁配合地面的人字拼木地板让整个空间更加具有趣味。

@胖徐设计工作室:主卧室素雅整洁,五十度灰的背景墙,淡淡、默默地散发静谧感。不再折腾于年轻的冲动而归于沉稳,追求内心的那份宁静。


-胖徐设计工作室-
-PANGXU Design-
私宅· 商业 · 软装 · 全托
玩味设计美学 | 营造极致空间 | 创造美好生活

长按关注胖徐设计工作室

长按添加店长微信
地址:四川省成都市锦江区沙河街道通宝街217号环球汇蔚然6楼628
电话:023-81213250
手机:18223209011