1
1
关注 胖徐的设计生活 请点上方 ▲蓝字

玩味设计美学,极致空间改造,创造美好生活

一个人
の
小确幸
a better life is simple
“美好的生活,其实很简单”
December 20, 2018
Copyright © PANGXU Design
Project area 项目面积:58㎡
Decoration cost 装修费用:15万
Design team 设计团队: 胖徐设计工作室

关于屋主
一个人上班, 一个人早餐,一个人习惯享受城市的另一半
一个人下班,一个人晚餐,一个人习惯面对世界说晚安

第一次见到屋主时,她便告诉我,这是她在这个城市里一个人的家,五十几平米的空间原本以为可以承载着她的
生活,没想到接房以后却发现空间和自己有些不匹配。
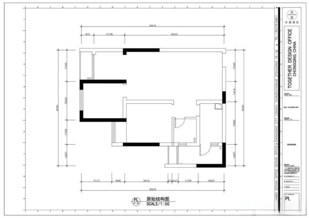
原始户型

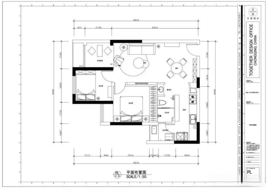
改造后平面分布

户型设计分析
从屋主自身需求和实际居住性考虑,她是有着一米七五左右身高的女性,爱下厨,爱购物,喜欢和朋友聚会
并且有时候会有家人回来小住几日,这个家也算是她和在重庆亲友的聚集地了
考虑在这些需求的设计上,我们户型改造的重点就在主卧,厨房,客餐厅,如何在58㎡的空间内放大空间的实用
性,合理规划出她的大主卧,舒适操作的厨房,亲友来聚的会客室,胖徐君为你一一道来

将餐客厅融合让这个小空间内的视角变大
空间显得通透且明亮

我们了解到屋主有很多鞋子,在这个小户型内,做了一整面鞋柜,方便她收纳

她是一个爱喝酒的潇洒小姐,软装设计中我们有专门选了一个特别设计的酒柜


在考设计之前我们和她交流中提到,这是她目前一个人居住的家,未来有了另一半会换房子,所以家里家具以可移动家具为主

原本户型比较小,所以封闭的阳台我们就做了一个小的台面,有一个视觉的区别,在空间的使用上阳台的部分仍然是独立的

小阳台可以做瑜伽区或者是小茶室,但是从入门处看到的视觉感受时,户型是整体变的更加开阔的

虽然这是她一个人居住的家,但是确实她生活的中心,屋主喜欢自己下厨邀请亲友来到家里做客,所以厨房是她的需求重点

我们打开厨房的面积,没有使用门来做封闭
使用集成灶,做了一个开放式厨房
改变了冰箱的位置,一个爱下厨的人需要更多的储物空间
我们改造了厨房的设计增加了另外的橱柜,方便她日常使用

借用卫生间的面积实现一个厨卫的干湿分离系统

卫生间我们用了分离设计,将洗手台,马桶和淋浴区完全分离,保证了日常使用
更多的是让干湿分离更加明确,日常生活清洁方面会更加方便

屋主有着傲人的身高,主卧必备的是一个大的床,原本户型内几平米的卧室有个大床就没有整体的大衣柜

所以在设计中,我们改变了卧室的使用面积,从客厅和卫生间借了一点面积,不影响其他空间的使用,却使得卧室面积变大,能够放下一张舒适的床,卧室也拥有了一面大的衣柜

做了一个简单的榻榻米床,方面屋主日常收纳,且有亲友来住时也是一个舒适的空间

温柔的色彩
总是会驱散冬天的凛冽与黑暗
遇见好的设计就好像
邂逅了一杯热可可与温暖烛光



– 胖徐设计工作室-
PANGXU Design
私宅· 商业 · 软装 · 全托
玩味设计美学 | 营造极致空间 | 创造美好生活

长按关注 胖徐设计工作室官网

长按添加店长微信
地址:四川省成都市锦江区沙河街道通宝街217号环球汇蔚然6楼628
电话:023-81213250
手机:18223209011