Popular Posts

胖徐实景新作《西西里》

关注 胖徐的设计生活 请点上方 ▲蓝字

玩味设计美学,极致空间改造,创造美好生活

Sicily

西西里

Mar.24 , 2022

Copyright © PANGXU Design

Project area                项目面积:126m²

Decoration cost          装修费用:450Thousand

Design team               设计团队:胖徐设计工作室

每一段故事诞生的地方,都有一种“美”存在。我们与其邂逅,被其触动,心生涟漪,新的故事便随之诞生。

在这过程中,“美”一直在旁静观。无论是带着喜悦还是哀伤,抑或更为细微的情感,触动人心的故事又会

孕育,并呈现出新的“美”,会在与谁相遇后,催生出另一段新的故事。

——《造物有灵且美》

-实景图-

@胖徐设计工作室:入户处U形设计的鞋帽区域,让玄关更干净简洁,提供给客厅和书房更私密的氛围感,也大大地增加了储物的空间。连通阳台让室外的光线自然的进入,享受阳光带来的美好热烈。

The U shaped shoe cap area made the vestibule cleaner and simpler, which provided a more private atmosphere for the living room and study, and also greatly increased the storage space. The balcony was connected so that the light outside could enter naturally and enjoy the beautiful and warm sunshine.

@胖徐设计工作室:大理石与格栅组合的电视背景墙,充满设计感的小心思,地台代替电视柜,不失整体性的石材铺设,浑然一体,内敛又不失格调。

The TV background wall made of marble and grid was full of design ideas. The floor table replaced the TV cabinet, and the overall stone was laid, which was integrated, reserved and not out of tune.

@胖徐设计工作室:壁炉消融了深灰地砖带来的冰冷感,分明的线条让整个客餐厅更干净利落,渐行渐显的玻璃屏风,分离出动静两区之间的界限,带来不一样的视觉体验。

The fireplace melted the coldness brought by the dark gray floor tiles, and the clear lines made the entire restaurant more neat and tidy. The glass screen gradually appeared, separating the boundary between the two quiet areas, bringing a different visual experience.

@胖徐设计工作室:通透的玻璃砖让光影产生朦胧的氛围感,与厨房同色系的边柜,餐厨整体更协调融合,将一部分厨房的功能移进餐厅,功能分区方便也更简洁大气。

The transparent glass bricks made the light and shadow have a hazy atmosphere. The side cupboard in the same color with the kitchen was more harmonious and integrated with the whole kitchen. Some of the kitchen’s functions were moved into the dining room, and the functional division was convenient and more simple.

@胖徐设计工作室:生活的小浪漫在一杯红酒中发酵,有灯火的温暖也有美食的治愈,去享受用心生活的每一天。

The romance of life was fermented in a glass of red wine, with the warmth of lights and the healing of delicacies, to enjoy every day of attentive life.

@胖徐设计工作室:开放式的厨房少不了集成灶的身影,简单的灰与白足够展现出生活的有条不紊。

The open kitchen was inevitably equipped with an integrated stove. The simple grey and white color was enough to show the orderly life.

@胖徐设计工作室:开放式的书房不会过分沉闷,半透明的书柜,倒映出空间的几何转折,无拘无束的氛围,让整个书房更放松自在。

The open study was not too dull. The translucent bookshelf reflected the turning point of the space, and the unrestrained atmosphere made the whole study more relaxed and comfortable.

@胖徐设计工作室:主卫没有多余的色彩,大面积的灰色大理石铺就,纯白色的浴缸与壁挂式马桶的加入,让整个空间更流畅干净。

There was no extra color for the main guard. The large grey marble floor, the pure white bathtub and the wall hung toilet were added, making the whole space more smooth and clean.

@胖徐设计工作室:将不一样的色彩融入主卧,墙面的纹理在光线下彰显出不一样的质感,没有艳丽的色彩,更易带来沉稳平和的睡眠体验感。

The different colors were integrated into the master bedroom. The textures on the wall revealed a different texture in the light. There was no bright color, and it was more likely to bring a steady and peaceful sleep experience.

@胖徐设计工作室:茶色的透明玻璃门搭配感应灯条的衣帽间,充满年轻的时尚感。极简的金属质感把手,简单精致,呈现出恰到好处的轻奢气质。

The tea colored transparent glass door and the cloakroom with the reaction light bar were full of young fashion. The simple metal texture handle was simple and exquisite, showing a proper extravagant temperament.

@胖徐设计工作室:将粉色系的儿童房填入童趣的元素,营造的氛围温馨而明亮,留下适当的空间,不去陈设多余的家具,让孩子去创造属于自己的小小世界。

Fill the pink children’s room with children’s fun elements, create a warm and bright atmosphere, leave appropriate space, do not display redundant furniture, and let children create their own small world.

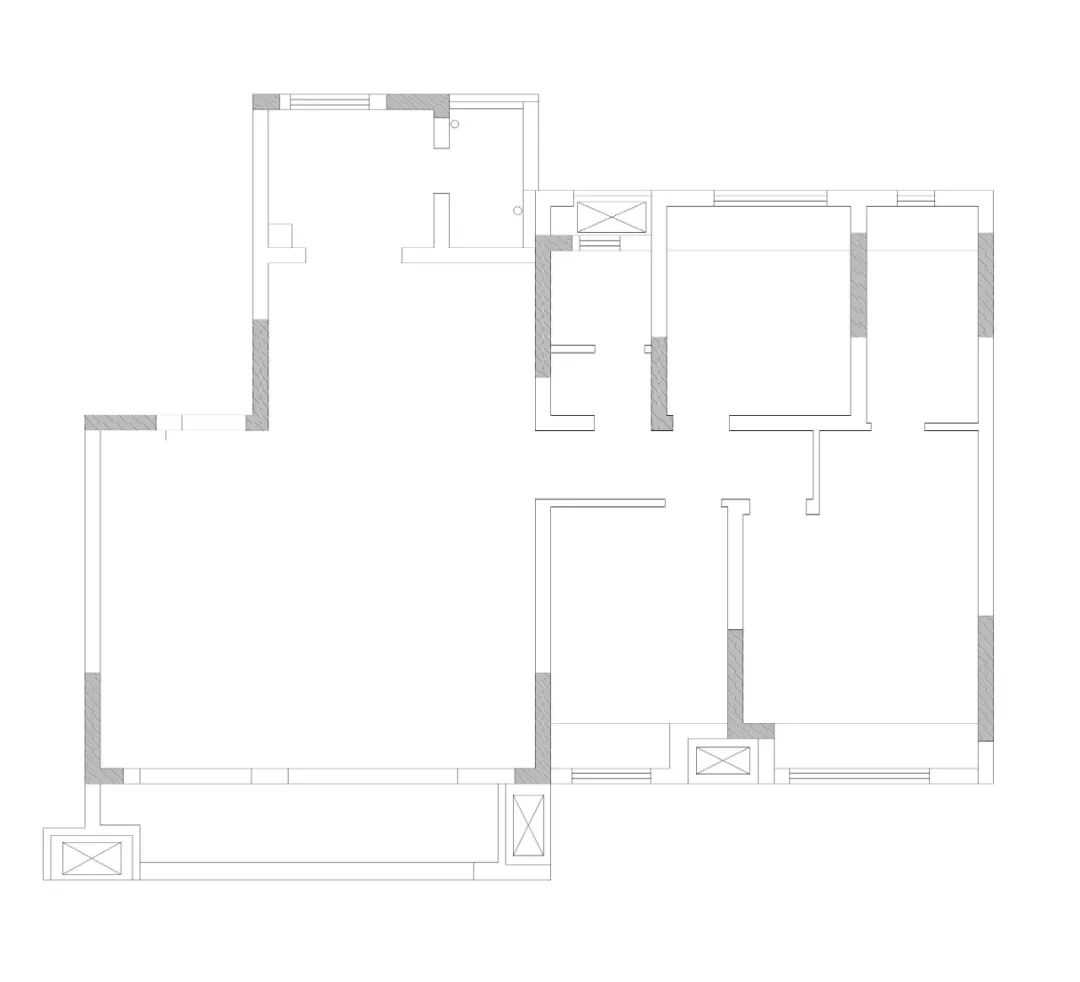
-原始结构图-

图片

@胖徐设计工作室:原始结构分析:

1、入户处没有玄关,且入户大门正对客厅区域,私密性不够;

2、厨房相对较小,生活阳台的入口位置比较尴尬,对厨房空间的使用有一定局限性;

3、每个卧室都有可拆卸的飘窗台,占据不少空间。

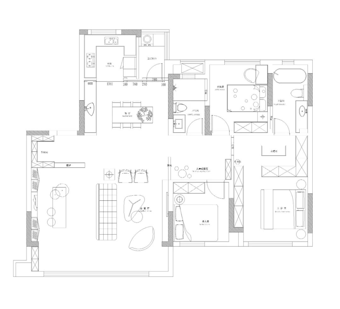
-平面布置图-

图片

@胖徐设计工作室:空间改造:

1、在入户处设计U形鞋帽区,巧用悬挂壁炉隔断玄关与客厅,增加私密性的同时也不会影响整个空间的通透感;

2、客厅连通外阳台,借用一部分空调机位的空间,让整个客厅区域更开阔大气;

3、将生活阳台的门口移出厨房,增大厨房的使用面积,整个餐厨与客厅连贯一体,玻璃砖的加入让采光更舒适,增加空间通透性;

4、利用空调机位和飘窗台多余的空间,将老人房整体内移,在静区走廊处空出一块休闲的儿童区;

5、改变主卧门的位置,将整个主卧空间扩大,增加衣帽储物空间,让主卧更舒适。

– 胖徐设计工作室-

PANGXU Design

私宅· 商业 · 软装 · 全托

玩味设计美学 | 营造极致空间 | 创造美好生活

长按关注 胖徐设计工作室官网

官网https://www.tutum.top

长按添加店长微信地址:四川省成都市锦江区沙河街道通宝街217号环球汇蔚然6楼628

电话:023-81213250

手机:18223209011

发表回复

您的邮箱地址不会被公开。 必填项已用 * 标注