1
1
关注 胖徐设计工作室 请点上方 ▲蓝字

玩味设计美学,极致空间改造,创造美好生活

Visions of Reality
现实的愿景
Dec. 09, 2021
Copyright © PANGXU Design
Project area 项目面积:91 m²
Decoration cost 装修费用:280 Thousand
Design team 设计团队:胖徐设计工作室
美国画家爱德华•霍普的画作以丰富的色块与光影而著名,而现实的愿景正是这样经典的重现,颜色丰富而平静的画面下是暗涌的情感表达。这是一场色彩与光影互相成就的呈现,在这愿景中去感知视觉色彩带来的艺术魅力。现实的愿景,是一场光影下的色彩呈现,正如这世界的丰富多彩,让家的温暖永不孤单。
-实景图-


@胖徐设计工作室:与薄纱搭配的落地窗别有一番温柔,简单的小茶几移动方便,在这里带来更大的活动空间,弧形的沙发,柔软舒适,即便是最简单的黑白配,也能陈述不一样的和谐生动。
The floor to ceiling window matched with the gauze was very gentle. The simple tea table was convenient to move, and it brought more space for activities. The arc-shaped sofa was soft and comfortable. Even the simplest black and white match could state different harmony and lively.



@胖徐设计工作室:温柔的落地灯,轻薄的纱帘,静谧的单人椅,在这里组合拼凑出恬淡的岁月温柔。
The soft floor lamps, thin gauze curtains, and the quiet single chair were combined here to make up a peaceful and gentle time.



@胖徐设计工作室:高饱和深色与浅色的碰撞,在这里绽放属于自己的色彩氛围,不规则的色块拼接出独特的空间一角。
The collision of high saturation dark color and light color created a unique color atmosphere here. The irregular color blocks formed a unique corner of the space.




@胖徐设计工作室:沉稳的墨绿是这里的主基调,不规则的图形变化加一点适当的留白,给空间一些设计感的色彩变化,简单的方形线条恰到好处勾勒墙面,在这里享受美食带来的小幸福。
The steady dark green was the main theme here. The irregular pattern change and some proper white marks made the space change in color. The simple square line outlined the wall perfectly, and here she enjoyed the small happiness brought by delicious food.


@胖徐设计工作室:深灰的平静在这里被热烈的红色衬托出不一样的优雅感,规则的方形在这里交汇拼接,是看似简单而不单调的色彩展现,静谧而又热烈。
The dark grey was set off with a different sense of elegance by the warm red. The regular square intersected and stitched here, showing the seemingly simple but not monotonous color, quiet and warm.


@胖徐设计工作室:阳光正好的午后,是暮色涂抹的梦幻,温暖的日光是最自然淳朴的色彩滤镜,给予最简单温馨的治愈,余晖瞬间温暖满屋。
The sunshine was just right in the afternoon, which was a dream covered by the twilight. The warm sunlight was the most natural and simple color filter, giving the simplest and warm treatment, the afterglow warms the house in an instant.


@胖徐设计工作室:需要一点小心思的儿童房,头顶酷酷的飞机模型灯,是童真小小世界里的美丽幻想,带着恐龙元素的小黑板将在小朋友无尽的想象空间里充满不思议的变化。
The children’s room needed a little thought, and the cool plane model lamp above their heads was the beautiful fantasy in the children’s world. The small blackboard with dinosaur elements would be full of changes in the children’s endless imagination space.
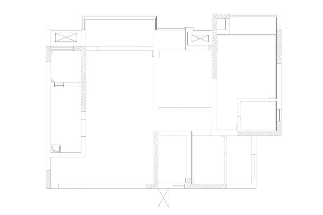
—原始户型图—

@胖徐设计工作室:原始结构分析:
1. 入户玄关较小,鞋帽空间相对比较局限;
2. 一字型厨房,可操作空间相对较小;
3. 原有的书房空间不大,靠近的阳台空间较小也比较浪费;
4. 次卧和主卧都有可拆卸的飘窗台,占据部分空间。
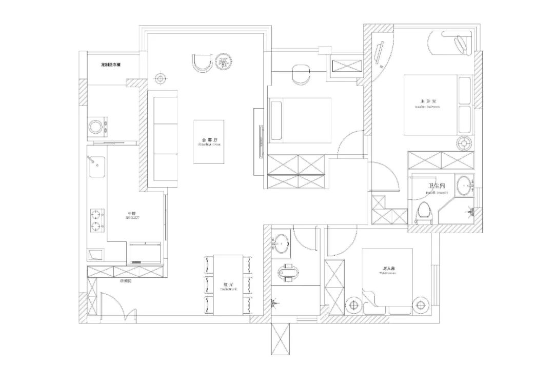
—平面布置图—

@胖徐设计工作室:空间改造:
1. 延长入户玄关,增加鞋帽空间,同时也将厨房外扩,增加厨房的使用空间;
2. 利用生活阳台的空调机位改造出一个洗衣槽位置,增加生活阳台的使用功能;
3. 打通休闲阳台,增加客厅空间,让客餐厅整体更通透舒适;
4. 将原有的书房连通阳台,改为老人房,拆除儿童房与主卧的飘窗,合理利用,增大使用空间;
5. 移动原主卧门位置,增大主卧玄关空间,也增加了主卧的衣帽空间。
-胖徐设计工作室-
-PANGXU Design-
私宅· 商业 · 软装 · 全托
玩味设计美学 | 营造极致空间 | 创造美好生活

长按关注胖徐设计工作室

长按添加店长微信
地址:四川省成都市锦江区沙河街道通宝街217号环球汇蔚然6楼628
电话:023-81213250
手机:18223209011