1
1
关注胖徐设计工作室 请点上方 ▲蓝字

玩味设计美学,极致空间改造,创造美好生活

Light
光语
Nov.18 , 2022
Copyright © PANGXU Design
Project area 项目面积:52㎡
Decoration cost 装修费用:160Thousand
Design team 设计团队:胖徐设计工作室
一个斑驳旧居,冷清萧索,经过蜕变,迎来了期盼的全新面貌。当光涌入,家的温暖便如约而至,灯火照亮归家温柔,阳光温暖闲适午后,有光便有爱,有爱便有家。用星星点点的光,抒写归家的煦然温柔。
-改造前-




-改造后-


@胖徐设计工作室:入户玄关地台设计,避免带入室外灰尘,入目便是一片纯净洁白,干净整洁,感受归家的宁静安然。
The floor of the entryway was designed to prevent the dust from being brought into the outside. What he saw was pure and white, clean and tidy, and felt the peace and security of returning home.



@胖徐设计工作室:客厅无主灯设计,让空间更轻盈,一整面的储物柜代替原有的电视墙,暗藏式的投影幕布,方便美观,闲暇时,一杯咖啡一部电影,足以消遣漫漫午后。
There was no main light in the living room, which made the space lighter. A whole cabinet replaced the original TV wall, and the hidden projection curtain was convenient and beautiful. When she was free, a cup of coffee and a movie were enough to amuse in the afternoon.




@胖徐设计工作室:将原始阳台改为多功能休闲区,抬高做地台设计,嵌入感应灯带,氛围感满满。
The original balcony was changed into a multi-functional leisure area, and the floor was designed to be embedded with the induction light belt, making the atmosphere full.




@胖徐设计工作室:用线条格栅点缀勾勒的墙面,增加了一丝精致的设计感,让原有的大白墙不再单调。
The wall outlined with a line grid added a sense of exquisite design, making the original big white wall no longer monotonous.

@胖徐设计工作室:厨房统一纯白色,搭配黑色家电,简约大气,半开放式的设计,让整体空间更通透明亮。
The kitchen was in pure white, matched with black appliances, simple and elegant, and the half open design made the whole space more transparent and bright.


@胖徐设计工作室:卫生间没有过多的色彩,素净的空间,能让整个空间显得更轻盈通透。
The bathroom didn’t have too much color. The simple space made the whole space lighter and transparent.



@胖徐设计工作室:主卧的整体氛围是柔软舒适的,暖调的奶油色搭配浅咖色,给人放松感,空间上用弧形线条去增加空间的柔和感。
The whole atmosphere of the master bedroom was soft and comfortable. The warm cream color and the light coffee color made people feel relaxed, and the space was added with arc-shaped lines to add the tenderness of the space.


@胖徐设计工作室:一盏灯、一面镜,正是这些简单的平凡小物组成了这个温馨柔软的避风港湾。
A light, mirror, it is these simple mundane objects that make up this welcoming and soft haven.
-原始结构图-
@胖徐设计工作室:原始结构分析:
1、原始入户玄关较小且长,空间感略显紧凑;
2、厨房形状为一字型较为狭长,使用起来比较局限,且生活阳台也比较小,实用性不高;
3、客厅外阳台狭小,整体采光不好;
4、主卧略显局促,卧室外阳台比较狭窄,实用性不高。
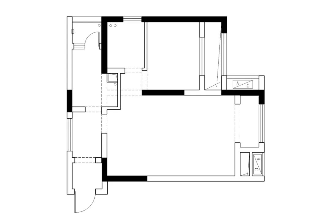
-平面布置图-
@胖徐设计工作室:空间改造:
1、缩短原始入户的玄关长度,增加储物空间,视线更开阔;
2、厨房连通生活阳台,整体向玄关处扩大延伸,改造为半开放式,增加采光通透性;
3、连通客厅外阳台扩大客厅空间,利用原始阳台区域,扩大做休闲地台,增加储物空间;
4、主卧连通阳台区域,扩大整体空间,增加梳妆区域,也增加了整体采光度。
-胖徐设计工作室-
-PANGXU Design-
私宅· 商业 · 软装 · 全托
玩味设计美学 | 营造极致空间 | 创造美好生活

长按关注胖徐设计工作室

长按添加店长微信
地址:四川省成都市锦江区沙河街道通宝街217号环球汇蔚然6楼628
电话:023-81213250
手机:18223209011