1
1
关注胖徐设计工作室 请点上方 ▲蓝字

玩味设计美学,极致空间改造,创造美好生活

Reed White Dew
蒹葭白露
February 28, 2020Copyright © PANGXU Design
Service area 房屋面积:118.47m2
Decoration cost 装修费用:380 Thousand yuan
Design team 设计团队 :胖徐设计工作室
其实现在我已经记不清最初和屋主初次会面的场景了,不过对于他们的儿子记忆犹新,这是眼眸闪烁着光彩的小朋友,在夫妻二人同我交谈的设计的过程中却能静静的坐在一旁。后期施工中偶尔小朋友同父母到工地上来,他都是安静的跟在母亲的身边,没有如其他他小朋友一样的好动和紧张,只有父母带他去小区里的楼儿童乐园玩耍时才显露出了孩子一般的快乐。
“在空间美学上不要盲目的只关注视觉设计,尊重生活本来的状态才是承载空间设计的关键。”
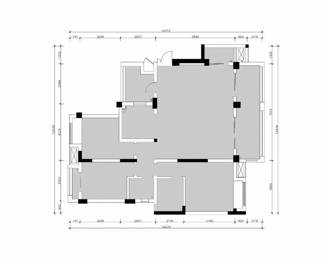
– 户型图 –
原始户型图@胖徐设计工作室:本案原始房屋在有一个特别不好的结构设计就是原始的厨房位置在房屋的中间靠着客厅的位置,厨房没有靠近餐厅这个是特别不方便的一种结构设计,第二个就是儿童房有一个一步阳台,这个阳台特别小又没有什么实际作用,这几个位置都是设计师在本案设计中重点改造的地方。
平面布置图@胖徐设计工作室:屋主是从事规划设计工作的,购买这套房屋主要的是解决小朋友的教育问题,同时也顺带提升自己的生活品质。平时夫妻二人的工作时间都比较紧张,他们的父母也会过来帮忙。所以本案空间设计的要点就是围绕着这些方面来进行的。
– 客厅 –

@胖徐设计工作室:最初屋主夫妻二人的风格取向是走简美风格,但是在设计的过程中设计师通过风格图片的分析和引导最终确定了现代美式混轻奢的风格。(设计师这套设计有本案的同一空间的不同风格的两套软装配搭方案,如有有小伙伴想看,可以留言,我们可以把软装表单更新出来)

@胖徐设计工作室:电视墙的设计简单的运用简化后的线条处理加上美式的大壁炉的形式来展现空间的设计元素。

@胖徐设计工作室:暗灰蓝色的电视墙的底色配搭白色简约的线条让空间更具有表现力。

@胖徐设计工作室:因为客餐厅的空间是一个长横厅,在原始的结构式顶部还有一根巨大的横梁,设计师巧妙的借助了横梁的高度进行了多吊顶和石膏阴角线的处理方式,让空间更加具有层次感,同时也放空间在视觉上自然的有了空间分区。
– 玄关 –

@胖徐设计工作室:在入户玄关的处理上,因为是长横厅的关系,玄关的右边基本上是一面完成平整的墙面,设计师巧妙在墙面上用装饰画、装饰壁灯和薄型的边几让空间有了横向和纵向的凹凸延展,使得空间在间距实用性的基础上更有看点。
– 餐厅 –

@胖徐设计工作室:如果大家仔细的去看原始的户型图,就可以发现在入户右边的墙面有一个内凹的空间尺寸,这个位置原始的尺寸只有200mm其实挺鸡肋的,设计师在这里对原始的墙面进行了外推,把原始的墙体加厚,生活阳台的尺寸外扩,让这个内凹的尺寸达到了350mm的厚度,在加大了生活阳台的尺寸的同时,也让这个凹槽可以做成餐厅使用的餐边柜。

@胖徐设计工作室:餐边柜我们在设计中没有全面的把这个空间做满,那样过去死板了,有凹有凸设计空间才会又有趣。不知道大家发现装饰画上的那副红色的樱桃水彩画没有,其实设计师在进行软装选择的时候就故意和客厅的坐榻做了有趣的呼应,可以回头看看客厅的照片,坐榻的背靠的那一抹红色正好和装饰画有了呼应。设计让生活更有趣。

@胖徐设计工作室:餐厅的餐桌选择的是天然大理石台面金色金属脚的轻奢风格的餐桌,餐椅也是刻意的选择的同沙发同色系的餐椅,来保证空间色彩的完整性。
– 走廊 –

@胖徐设计工作室:睡眠区和客厅活动区域我们做了空间结构的独立处理,动静分离。
– 卧室 –

@胖徐设计工作室:主卧室空间在色彩上还是保证以高级灰为基调,墨绿色为主色调。原始的飘窗台设计师在征得物业的同意后进行了拆除,把这个位置做成了一个带储藏功能的置物柜,满足屋主的大量的储藏需求(因为有小朋友的原因,我们还专门绞尽脑汁在空间中给屋主做了一个很大的储藏间,大家可以翻看平面设计图找找在哪里:))

@胖徐设计工作室:主卧室的金色壁灯和金色边框的装饰画都是为了呼应整个空间调性专门设计配搭的。

@胖徐设计工作室:主卧室一角。
– 儿童房 –

@胖徐设计工作室:儿童房的设计师考量到屋主的小朋友是一个5岁的男孩,年纪正好处于幼儿园和小学的切换中,所以设计师在设计上就没有采用卡通为主的适合低龄儿童的风格,还是主空间的风格进行呼应,只是在装饰画和窗帘上采用了一点俏皮的处理方式。

@胖徐设计工作室:儿童房一角,大家以后在装修过程中,要注意一下风格,在美欧风格的踢脚线的处理上,衣柜下面一定要预留好让踢脚线安装尺寸,这样踢脚线在衣柜安装完成后可以绕着衣柜一圈,这样衣柜下就不用留下难看的金属压条来收口了。房屋的设计细节就是要体现细节上。

@胖徐设计工作室:之前我们说过这个儿童房以前有一个非常鸡肋的一步阳台,设计师最后在设计上把这个一步阳台纳入到儿童房的空间中来了,增大了儿童房的活动面积。同时也尽量的减少儿童房的不安全因素。
– 次卧室 –

@胖徐设计工作室:次卧室拆除掉了原始的飘窗台增加空间的活动面积,因为是给父母使用,设计师在询问了屋主的意见后,就没有在设计上进行炫技的花哨处理,风格以干净明快为主。

@胖徐设计工作室:次卧室一角。
– 书房 –

@胖徐设计工作室:原本的空间是没有书房的,但是因为空间是一个长横厅,长横厅的房屋一般都有一个特点就是阳台特别长,设计师在在对小区做了专门的踏勘后,发现因为是靠中部的洋房,房屋和房屋的距离特别近,所以一个宽大的阳台就有点浪费了,所以最后在设计上我们就把阳台一份为二,一部分作为景观阳台使用,另外一部分就纳入到房屋内部来做成了一个带地台的书房兼茶室空间,满足了屋主的办公和会客需要。
– 卫生间 –

@胖徐设计工作室:卫生间在设计上地面专门用大理石做了拉槽的防滑处理,2米长的洗脸台的尺寸日常使用的同时也满足了女主人对于化妆的使用。
– 厨房 –

@胖徐设计工作室:房屋的入户鞋柜一直是设计上的难点,既要满足一家三口的储藏使用,又要让厨房的入口显得大气,所以设计师在厨房的入口处是把鞋柜和厨房门套做了一个统一的设计处理,这样同色系的门套加鞋柜让视觉空间显得完整大气。

@胖徐设计工作室:大家可以看一下原始的平面图,原始的厨房空间在房屋的中部,之前我们有提到它的一些不合理之处,设计师在设计利用了原始的生活阳台把原始厨房的部分空间和生活阳台做了结合增加了厨房的操作面积不说,也让厨房和餐厅关联起来了,又把原始的厨房的部分空间在睡眠区做成了一个储藏间。那大家会问了,生活阳台没有了怎么办,洗衣服晾晒衣服怎么办?大家看后面的照片就知道了。
– 生活阳台 –
@胖徐设计工作室:其实大家可以看一下平面设计图,在原始的空间上有一个很小的储藏阳台,原始的这个阳台很鸡肋,同小区的人有些人是把这块纳入到房屋立面来做成书房处理,但是太小了人在里面长期活动是吧舒服的,但是我们的设计师把这个地方进行了改造处理,在阳台的左边设计成了叠放的洗衣机和烘干机,在原来空调机位的上方设计师还巧妙地利用了空调机位的高差做了一个专属的洗衣槽,供业主清洗小件的衣物,最后我们还在顶部安装了固定式的晾衣架,小空间就最好不要做升降的了,因为衣架下降下来,人还要有活动空间。所以在设计上我们理念就是要榨干每一寸空间,毕竟这都是业主真金白银花钱买来的:)
-胖徐设计工作室-
-PANGXU Design-
私宅· 商业 · 软装 · 全托
玩味设计美学 | 营造极致空间 | 创造美好生活

长按关注胖徐设计工作室

长按添加店长微信
地址:四川省成都市锦江区沙河街道通宝街217号环球汇蔚然6楼628
电话:023-81213250
手机:023-18223209011